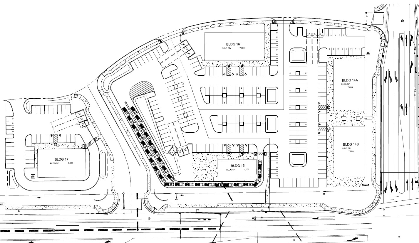
back Roseville (Baseline) Phase II, California
NWC of Fiddyment Road and Baseline Road
Roseville, California 95747
Roseville, California 95747
+
−
NWC of Fiddyment Road and Baseline Road
Roseville, California 95747
Roseville, California 95747